Plans techniques
Des documents clairs et précis pour transformer une idée en réalité
1 min read
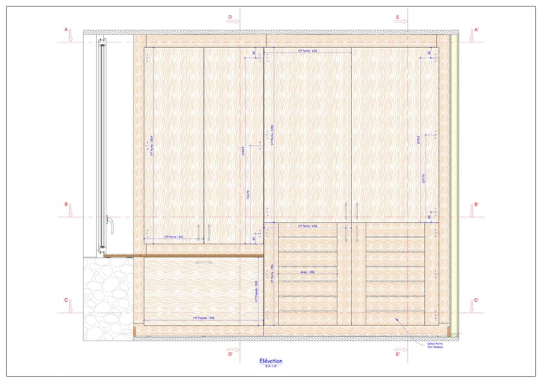
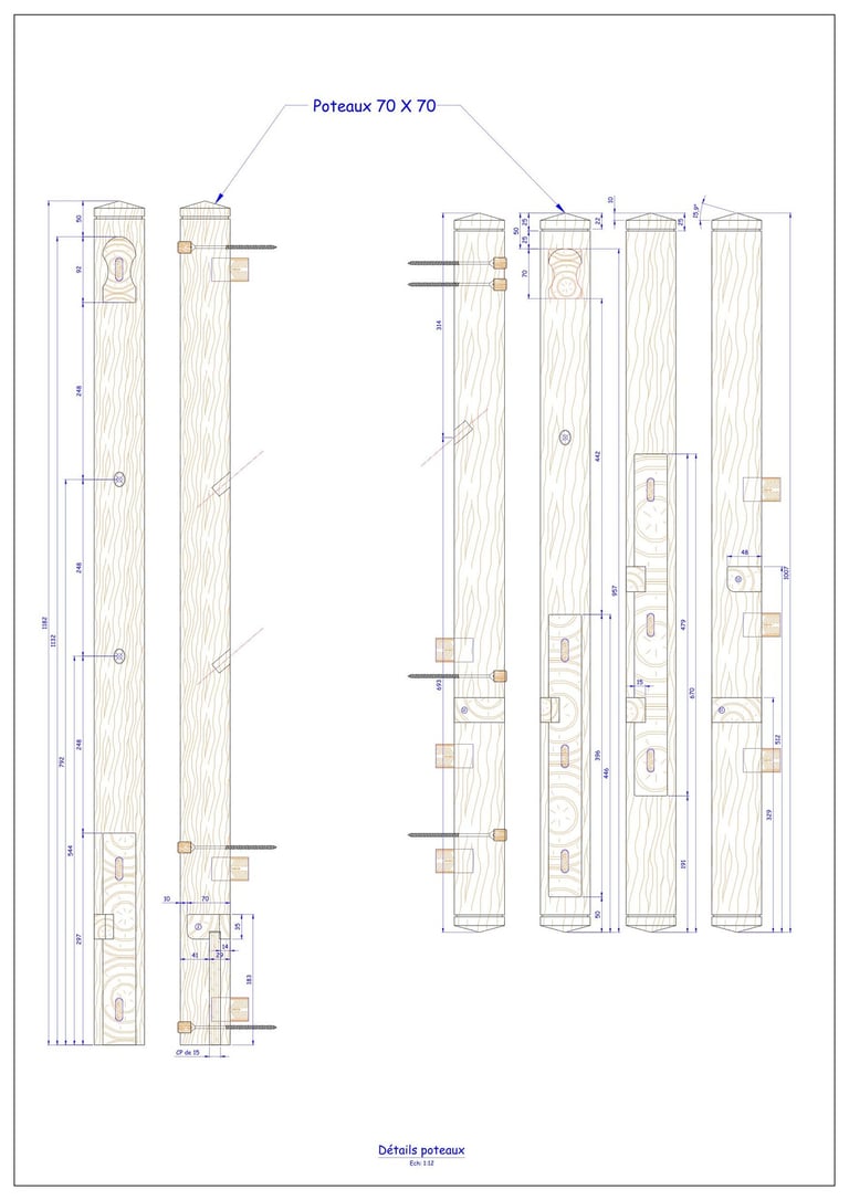
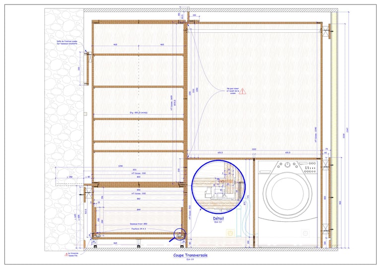
Plans de fabrication : la base d’un projet bien construit
Que ce soit à la suite d’une modélisation 3D ou d’après une demande spécifique, la réalisation de plans de fabrication permet de concrétiser un projet.
Dans cette sélection, tu trouveras des extraits de dossiers techniques, conçus pour faciliter la découpe, le montage et l’installation.
Chaque plan est adapté au niveau de détail nécessaire : du meuble simple au projet plus complexe, toujours dans un souci de clarté, de logique d’assemblage et de lisibilité.





































