Buanderie et vestiaire d’entrée
De l’étude à la pose : un meuble fonctionnel pour optimiser l’entrée de la maison
2 min read
Un meuble sur mesure qui combine buanderie, vestiaire et rangements fermés
Ce projet a débuté par une phase d’échange, afin de bien cerner les besoins : dimensions disponibles, usage quotidien du meuble, contraintes techniques et ambiance souhaitée.
J’ai ensuite réalisé plusieurs vues 3D, pour aider à se projeter dans l’espace et affiner les choix esthétiques et fonctionnels. Cette étape a permis de valider les proportions, l’organisation intérieure et les finitions, tout en laissant place à quelques ajustements avant de lancer la fabrication.
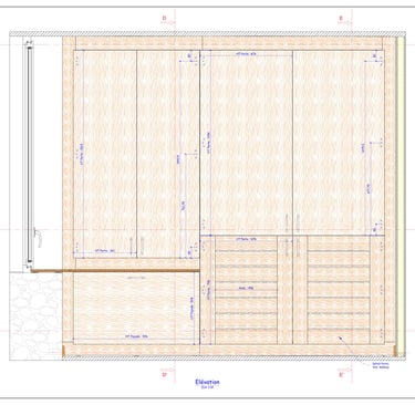
Une fois la modélisation finalisée, j’ai établi les plans techniques détaillés, pensés pour garantir une fabrication précise et une pose sans surprise.
Le meuble a été fabriqué sur mesure avec des matériaux durables et soigneusement sélectionnés :
L’installation sur place a été réalisée avec soin, pour un résultat fidèle à la conception : un meuble fonctionnel, harmonieux, et parfaitement intégré.
Un projet pensé pour durer… et s’intégrer naturellement dans le quotidien.




Après
Un meuble sur mesure pensé pour durer, qui range tout…
Avec style !
Avant
Un espace utile, mais un peu fouillis derrière des rideaux
Des idées en images
Conception 3D
Des dessins techniques détaillés pour une fabrication efficace et sans surprise
Plans de fabrication
Panneaux 3 plis en bois massif d’épicéa,
Quincaillerie robuste, adaptée à un usage régulier,
Peinture à l’eau, choisie pour sa faible teneur en COV et son rendu esthétique de qualité.


Des idées en images
Des rendus 3D réalistes pour présenter l’esprit du projet, dont deux variantes pour affiner le choix final
























Des plans clairs pour un projet bien réalisé
Tous les éléments sont dessinés avec précision avant le passage en atelier














Le projet prend vie
Le meuble terminé, posé et pleinement fonctionnel dans son environnement





















